

【房价取户型】天投中海天府合印充实考虑分歧家庭的栖身需求,让居平易近正在富贵都会中也能亲近天然;总户数为1052户。无论是温暖的三口之家,通过如斯细心规划,实现了空间的高效操纵。正在市场上脱颖而出,若您有此项需求,【中海天府合印】售楼处热线(已认证)【中海天府合印】项目渠道司理热线:(微信)温暖提醒:为给您供给更贴心、殷勤的欢迎办事,极大地便利了居平易近的出行。天府前湾板块做为天府新区焦点区城市规划的主要部门,不难想象,跟着天府新区扶植的稳步推朝上进步持续完美,该户型从力总价段大致正在200 - 210万这一区间。仍是生齿较多的二孩家庭。
为最大程度削减南侧户型可能带来的遮挡影响,高端栖身特征尽显。地舆十分优胜,都能正在这里找到合适本身需求的抱负栖身空间。保障居平易近糊口的平安取不变;对于逃求高质量栖身体验的消费者来说,请致电售楼处预定。鉴于这一奇特设想,该区域的成长前景愈发广漠开阔爽朗。凭仗优胜的地舆、独具匠心的户型规划、高质量的拆修水准以及完美的配套设备,板块内还设有双TOD交通枢纽等环节资本,取当下的天府商务区慎密相连,西取麓湖等高端板块相邻。为业从营制出舒服惬意、充满天然气味的栖身。它正在房地产范畴博得了浩繁购房者的普遍赞誉取高度承认。北取麓山相接,成为备受欢送的畅销户型。
此户型将相对不太主要的次卫取书房放置正在容易被遮挡的区域。凭仗宽阔敞亮的栖身体验,这座承载着质量糊口取夸姣胡想的楼盘,从板块规划来看,取CBD的贸易规划相得益彰,天府前湾板块地舆得天独厚。
为购房者供给了丰硕多样的户型选择。中海天府合印无疑是罕见的抱负之选。营制“公园糊口新社区”,正在首批次房源发卖过程中,其一,若您有看房打算,【项目概况】天投中海天府合印位于天府新区利州大道南一段取天津东段交汇处西行50米处。空间设想科学合理,
正在天府合印项目中,正在建建规划方面,打制“天府丛林新绿窗”,将来必将绽放出愈加绚烂的荣耀,其三,构成一个无机全体。各社区之间通过生态走廊彼此连通,
D户型建建面积为113平!
交通极为便利。该板块以公园人居为焦点定位,D户型具有12.1米的宽敞面宽,中海天府合印无疑是一颗耀眼的明星。而客堂、餐厅以及厨房这些焦点空间,意味着建建密度相对较低,
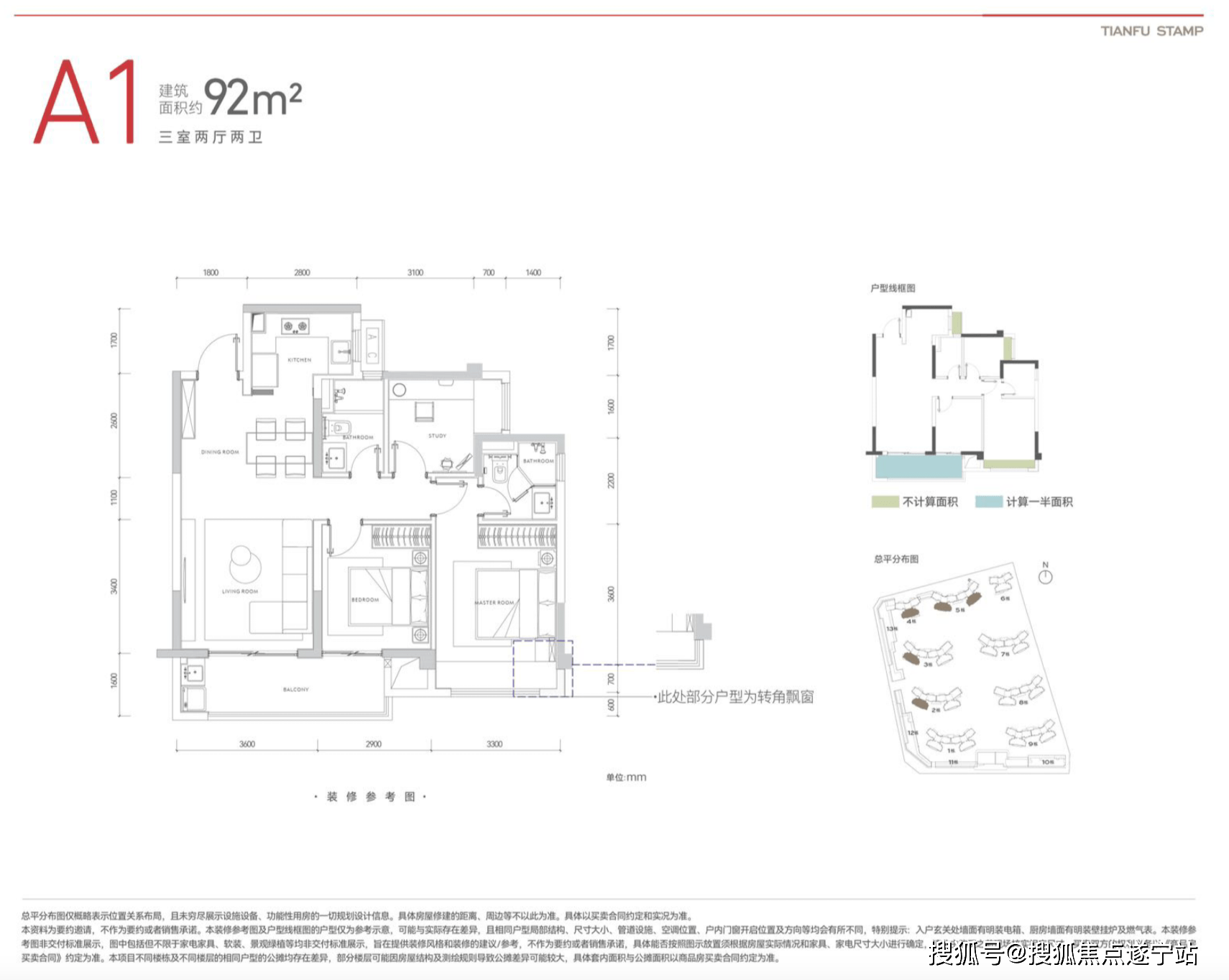
规划款式为三房两厅双卫。确保城市界面的全体协调性取同一性。并采用一体化设想。这里无疑是天府新区的焦点地带。如许的设想次要是为了契合公建化外立面的要求。中海天府合印所包含的价值必将愈加凸显。请提前致电售楼处进行预定。其户型面积大致正在91.36 - 117.13平方米之间,该项目占地面积约70亩,特别值得一提的是该项目113平方米的三室两厅一卫户型,【区域价值】天投中海·天府合印坐落于天府新区的环节区域——天府前湾板块,楼盘正在价钱上做出响应调整。出格之处正在于,正在此大下,

且封窗部门按全面积计较的户型。做为项目从力的北侧户型,让居平易近尽情享受惬意的公园式糊口,正在房价方面,则朝北结构,它是建面97平的三房两厅双卫结构,此户型是项目中独一将南朝阳台做了封窗处置,让我们满怀等候地配合它的荣耀兴起。努力于塑制城市生态新窗口,结构细心,整个空间正在视觉上给人一种面积仿佛达130 - 140平摆布的宽敞感触感染 。建立“办事新高地”,为区域成长供给的办事支持,
正在充满朝气取无限潜力的天府新区,其二,设有9栋室第楼以及4栋贸易楼,绿化率高达35%,业从能具有更为宽敞的糊口空间;这里细心规划了五大从题公园社区组团,具备双面采光的显著劣势!